- Woonoppervlakte
- Circa 79 m²
- Inhoud
- Circa 267 m³
- Bouwjaar
- Gebouwd in 2007
- Aantal kamers
- 3 kamers (1 slaapkamer)
For english see below
Modern en comfortabel appartement op toplocatie
Dit ruime en lichte appartement aan de Baron Sloetkade, direct gelegen aan het Apeldoorns Kanaal, biedt een unieke woonervaring. Het appartement bevindt zich op de eerste en tweede verdieping van het appartementencomplex "Barcalona" en heeft een oppervlakte van 79m².
Indeling
Eerste verdieping: Slaapkamer met aangrenzende badkamer.
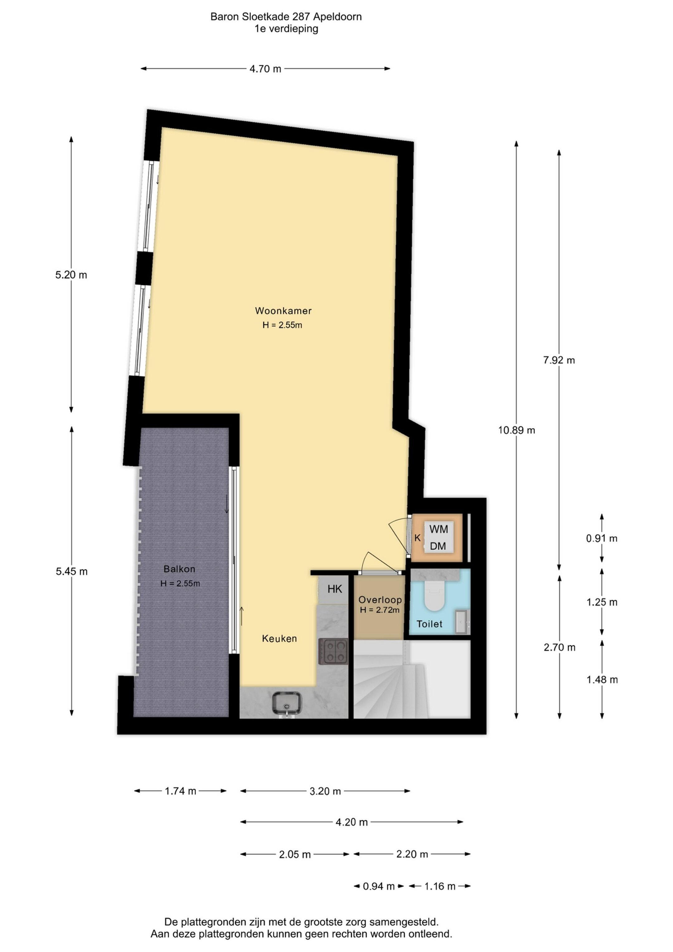
Tweede verdieping: Lichte woonkamer met open keuken, separaat toilet en balkon.
Het balkon biedt een aangenaam buitenverblijf met uitzicht over het Apeldoorns Kanaal en de stad.
Uitstekende voorzieningen en bereikbaarheid
Het appartement is gelegen op loopafstand van diverse voorzieningen, waaronder:
- Het treinstation
- Het centrum van Apeldoorn
- Uitgaansgelegenheden
- Huisartsenpraktijk en apotheek
- Sportscholen en supermarkten
Daarnaast bevinden de Veluwse bossen zich op slechts 4 kilometer afstand.
Privé parkeergelegenheid
De woning beschikt over een afsluitbare garage met een vloeistofvrije gietvloer, een zeldzame luxe in het centrum van Apeldoorn.
Vereniging van Eigenaren (VvE)
De maandelijkse VvE-bijdrage bedraagt:
€83,- voor de woning
€46,62 voor de garage
Dit appartement combineert een centrale ligging met comfort en privacy.
Neem contact op voor meer informatie of een bezichtiging.
Modern and Comfortable Apartment in a Prime Location
This spacious and bright apartment on Baron Sloetkade, directly located along the Apeldoorn Canal, offers a unique living experience. Situated on the first and second floors of the "Barcalona" apartment complex, it has a total area of 79m².
Layout
First floor: Bedroom with en-suite bathroom.
Second floor: Bright living room with an open kitchen, separate toilet, and balcony.
The balcony provides a pleasant outdoor space with views over the Apeldoorn Canal and the city.
Excellent Amenities and Accessibility
This apartment is within walking distance of various essential facilities, including:
The train station
Apeldoorn’s city center
Entertainment venues
A medical practice and pharmacy
Gyms and supermarkets
Additionally, the Veluwe forests are just 4 kilometers away, perfect for outdoor activities.
Private Parking
The property includes a secure private garage with a liquid-resistant cast floor, a rare luxury in the city center.
Homeowners' Association (VvE)
The monthly VvE contribution is:
€83 for the apartment
€46.62 for the garage
This apartment offers a perfect combination of central location, comfort, and privacy. Contact us for more information or to schedule a viewing.
Overdracht
- Vraagprijs
- € 375.000 k.k.
- Status
- Verkocht
- Bijdrage VvE
- € 83,00 per maand
Bouw
- Object type
- Maisonnette (appartement)
- Soort bouw
- Bestaande bouw
- Bouwjaar
- 2007
- Soort dak
- Plat dak bedekt met bitumineuze dakbedekking
Oppervlakte en inhoud
- Woonoppervlakte
- 79 m²
- Inhoud
- 267 m³
- Externe bergruimte
- 23 m²
- Gebouwgeb. buitenruimte
- 10 m²
Indeling
- Aantal kamers
- 3 kamers (1 slaapkamer)
- Aantal badkamers
- 1 badkamer en 1 apart toilet
- Badkamervoorzieningen
- Douche, inloopdouche, en toilet
- Aantal woonlagen
- 2 woonlagen
- Gelegen op
- 1e woonlaag
- Voorzieningen
- Airconditioning, glasvezelkabel, lift, en mechanische ventilatie
Energie
- Energielabel
- A
- Energielabel registratie
- 09-04-2019
- Isolatie
- Dakisolatie, hr-glas, muurisolatie en volledig geïsoleerd
- Verwarming
- Cv-ketel
- Warm water
- Cv-ketel
- Cv ketel
- Remeha (gas gestookt uit 2018, eigendom)
Buitenruimte
- Ligging
- Aan rustige weg, aan water, in centrum, in woonwijk en vrij uitzicht
Bergruimte
- Schuur / berging
- Inpandig
- Voorzieningen
- Elektra
Garage
- Soort garage
- Garagebox
- Capaciteit
- 1 auto
- Voorzieningen
- Elektrische deur en elektra
Parkeergelegenheid
- Soort parkeergelegenheid
- Parkeergarage
VvE checklist
- Inschrijving KvK
- Ja
- Jaarlijkse vergadering
- Ja
- Periodieke bijdrage
- Ja (€ 83,00 per maand)
- Reservefonds aanwezig
- Ja
- Onderhoudsplan
- Ja
- Opstalverzekering
- Ja
Energieverbruik in Apeldoorn
Energielabel deze woning
Energielabel A
Publicatie energielabel: 09-04-2019
Stroomverbruik per jaar
(Gemiddelde appartement in Apeldoorn)
Gasverbruik per jaar
(Gemiddelde appartement in Apeldoorn)
* Cijfers zijn afkomstig van het CBS en bedoeld als indicatie en kunnen verschillen voor deze woning
Indicatie hypotheeklasten
Eigen inleg:
Spaargeld / overwaarde
Rente:
Laagste 10-jaars rente
Laagste 10-jaars rente
2,75% - Centraal Beheer Groen... - NHG
3,04% - Argenta Groen Hypothee... - 80%
Laagste 20-jaars rente
3,18% - Argenta Groen Hypothee... - NHG
3,39% - Argenta Groen Hypothee... - 80%
Laagste 30-jaars rente
3,35% - Argenta Groen Hypothee... - NHG
3,56% - Argenta Groen Hypothee... - 80%
Hypotheek:
Bruto maandlasten: € 0 p/m
Netto maandlasten: € 0 p/m
Hoe berekenen we dit?
Het rentepercentage is gebaseerd op de laagste 10 jaars vaste rente voor één hypotheekdeel. De vermelde rente (2.75% met NHG) is gecontroleerd op 07-11-2025. Deze berekening is gebaseerd op een annuïteitenhypotheek die volledig wordt afgelost, waarbij de maandlasten gedurende de gehele looptijd gelijk blijven. De werkelijke rente en netto maandlasten kunnen variëren, afhankelijk van uw persoonlijke situatie en de hypotheekverstrekker. Raadpleeg een financieel adviseur voor een nauwkeurige berekening en advies. Aan deze berekening kunnen geen rechten worden ontleend; het dient enkel als indicatie.
Documentatie
Kadastrale kaart
Leefomgeving
Plattegronden PDF
BAG uittreksel
Brochure
WOZ waarderapport
Vragenlijst-deel-b-appartementsrecht-2337
Bezoek onze website
Bezichtiging
Bod uitbrengen
Waardebepaling
Zoekopdracht
Alles downloaden
Zonnegrenzen bekijken
Op de kaart
Inwoners in Apeldoorn
Cijfers voor postcodegebied 7321
- Totaal aantal inwoners
- 6025 inwoners
- Mannen
- 49%
- Vrouwen
- 51%
Inwoners in Apeldoorn
Cijfers voor postcodegebied 7321
- tot 15 jaar
- 13%
- 15 tot 25 jaar
- 12%
- 25 tot 35 jaar
- 20%
- 45 tot 65 jaar
- 34%
- 65 en ouder
- 22%
Huishoudens in Apeldoorn
Cijfers voor postcodegebied 7321
- Eenpersoons zonder kinderen
- 28%
- Meerpersoons zonder kinderen
- 39%
- Huishoudens zonder kinderen
- 67%
Huishoudens in Apeldoorn
Cijfers voor postcodegebied 7321
- Huishoudens met één kind
- 6%
- Huishoudens met meerdere kinderen
- 27%
- Huishoudens met kinderen
- 33%
Woningen in Apeldoorn
Cijfers voor postcodegebied 7321
- Woningen voor 1945
- 14%
- Woningen tussen 1945 en 1965
- 1%
- Woningen tussen 1965 en 1975
- 1%
- Woningen tussen 1975 en 1985
- 1%
- Woningen tussen 1985 en 1995
- 41%
Woningen in Apeldoorn
Cijfers voor postcodegebied 7321
- Woningen tussen 1995 en 2005
- 18%
- Woningen tussen 2005 en 2015
- 22%
- Woningen na 2015
- 3%
- Huurwoningen
- 20%
- Koopwoningen
- 80%
Overige in Apeldoorn
Cijfers voor postcodegebied 7321
- Gemiddelde WOZ waarde
- € 290.000,-
- Personen onder de 65 met uitkering
- Niet beschikbaar
Overige in Apeldoorn
Cijfers voor postcodegebied 7321
- Adressen per km²
- 2318
- Stedelijkheid (schaal 1 op 5)
- 80%
Indien u vragen heeft of u wilt een bezichtiging inplannen, dan kunt u gebruik maken van het formulier hiernaast. Er zal daarna op korte termijn contact met u worden opgenomen.
De Eglantier 404
7329 DL, Apeldoorn
055 202 00 10 apeldoorn@wittewoningmakelaars.nl www.wittewoningmakelaars.nlContact opnemen
WitteWoning makelaars Apeldoorn
Uw woning verkopen kan natuurlijk bij iedere willekeurige makelaar, waarom dan toch kiezen voor WitteWoning Makelaars.
WITTEWONING MAKELAARS BIEDT U BIJ ALLE DIENSTVERLENING ALTIJD DE BESTE SERVICE VOOR DE SCHERPSTE PRIJS VAN NEDERLAND
Hierbij regelen wij het gehele traject van A tot Z. Van opname van de woning tot sleutel overdracht. Alles wordt geregeld, en u wordt hierbij zoveel mogelijk ontlast of begeleid.
Wilt u zelf ook uw steentje bijdragen, door bijvoorbeeld zelf de bezichtigingen met aspirant kopers te verzorgen, dan kunnen we een lagere courtage bij verkoop met u overeenkomen*
Vanzelfsprekend komt u woning niet alleen op onze website te staan, maar ook wordt deze volledig geplaatst op Funda, onze eigen website en een aantal andere sites. Verder zijn er nog veel websites die ons aanbod spyderen waardoor uw woning terug te vinden is op een groot aantal websites. Hiermee heeft u dus een bereik van een miljoenen publiek voor uw te koop staande woning.
* Vraag bij uw lokale vestiging naar de mogelijkheden
Nieuwste reviews
-
Liesbeth van Rixtel
Ontzettend dankbaar ben ik dat ik Piet de Haan als aankoopmakelaar heb gehad. Dankzij zijn kennis en contacten heb ik snel een woning kunnen...
-
Jan-willem Rozema
Piet heeft ons in de eerste plaats geholpen als aankoopmakelaar. Geen bezichtiging was Piet teveel en zijn pro actieve houding konden wij on...
-
Snajpi
**Onmisbare Hulp en Topperservice - Piet De Haan van WitteWoning Makelaars** Mijn vrouw en ik willen onze diepe dankbaarheid uitspreken voo...